Der Haustyp „Sky²“ steht für kompaktes Wohnen mit großzügigem Gefühl – auf drei Ebenen und rund 151 m² Nutzfläche. Die offene Wohnküche mit Terrasse und sonnigem Garten schafft Raum für gemeinsames Leben.
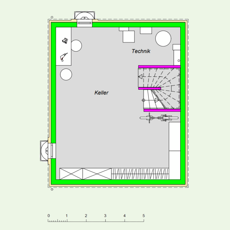
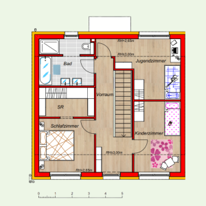
Dank der Vollunterkellerung entsteht wertvoller Stauraum für Alltag und Hobbys. Drei Schlafzimmer, Ziegelbauweise, Luftwärmepumpe, Fußbodenheizung und PV-Anlage sorgen für nachhaltigen Wohnkomfort und niedrige Betriebskosten – weil ich besser wohnen will.

























