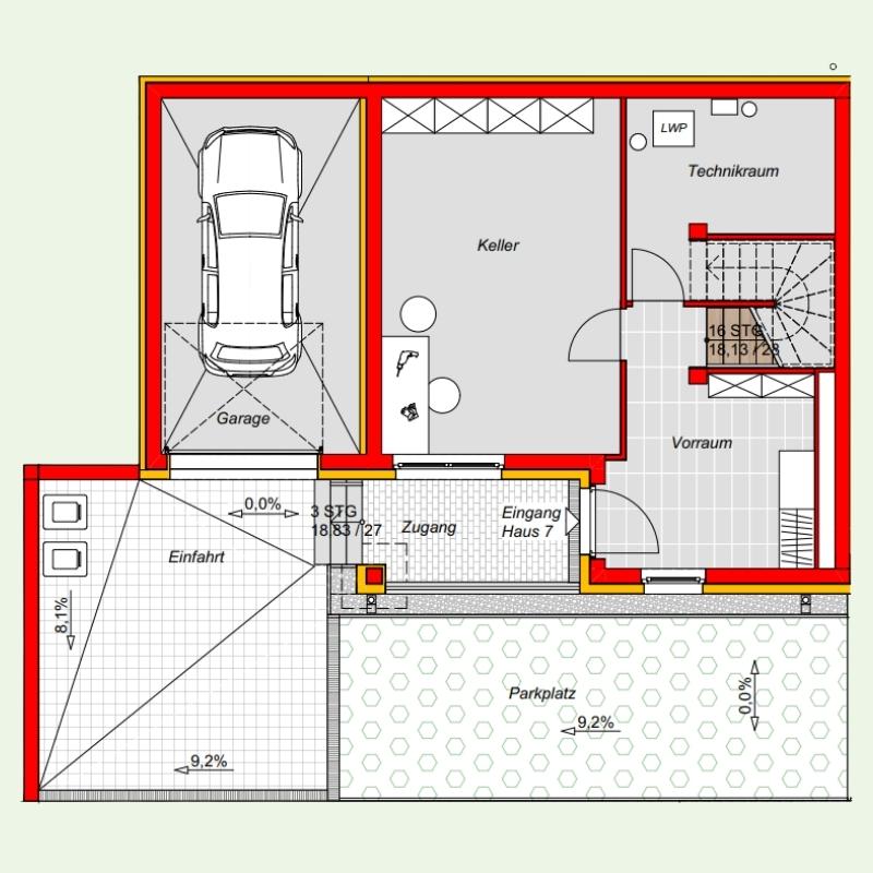
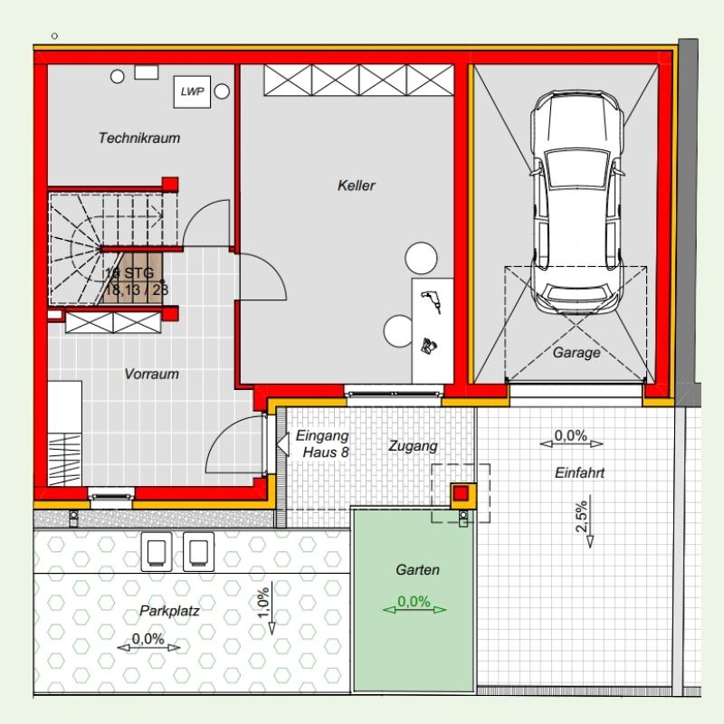
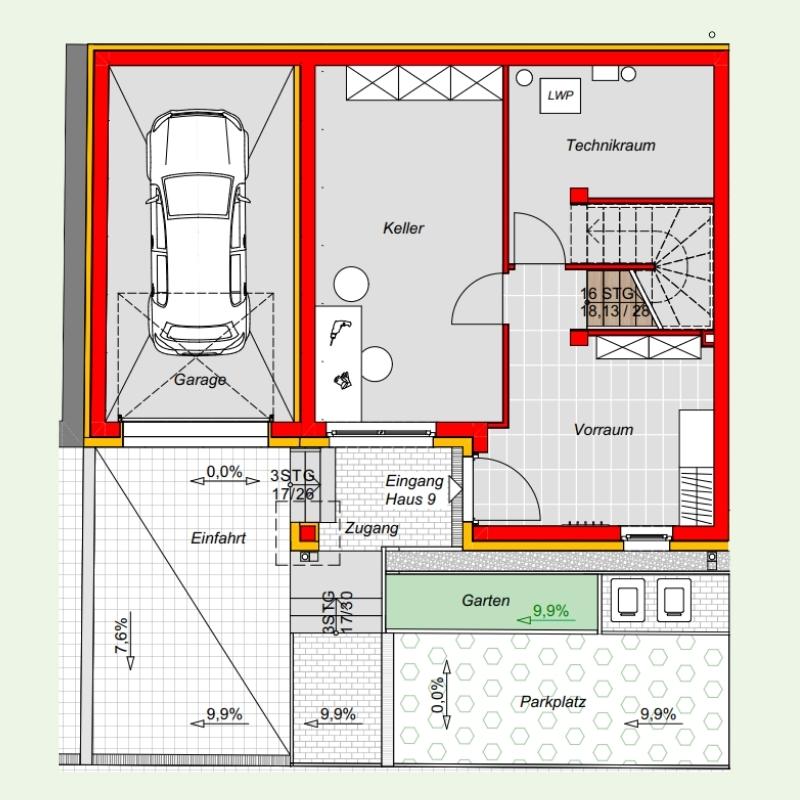
Dieses Haus steht für modernes Wohnen mit außergewöhnlichem Gefühl – auf drei Ebenen und rund 178 m².
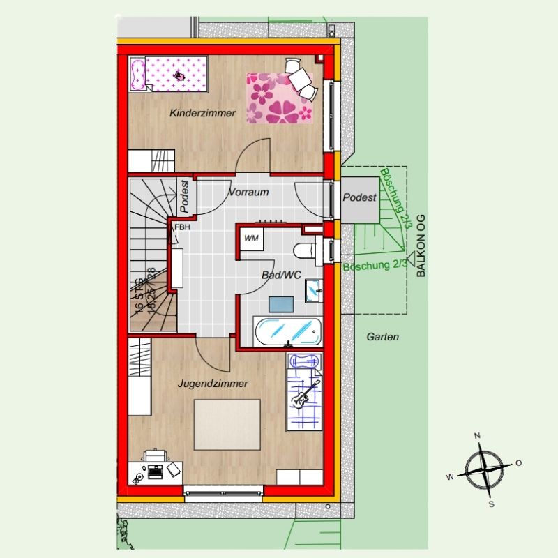
Die unterste Ebene vereint Eingangsbereich, Zugang zur Garage und wertvollen Stauraum für Alltag und Hobbys. Die oberen beiden Ebenen dienen dem Wohnkomfort. Eine offene Wohnküche mit Terrasse und Eigengarten schafft Raum für gemeinsames Leben. 3 Schlafzimmer bieten viel Platz für Rückzug aus dem Alltag.
Moderne Technik mit PV-Anlage, Luftwärmepumpe und Fußbodenheizung sorgt für Energieeffizienz und niedrige Betriebskosten.















































