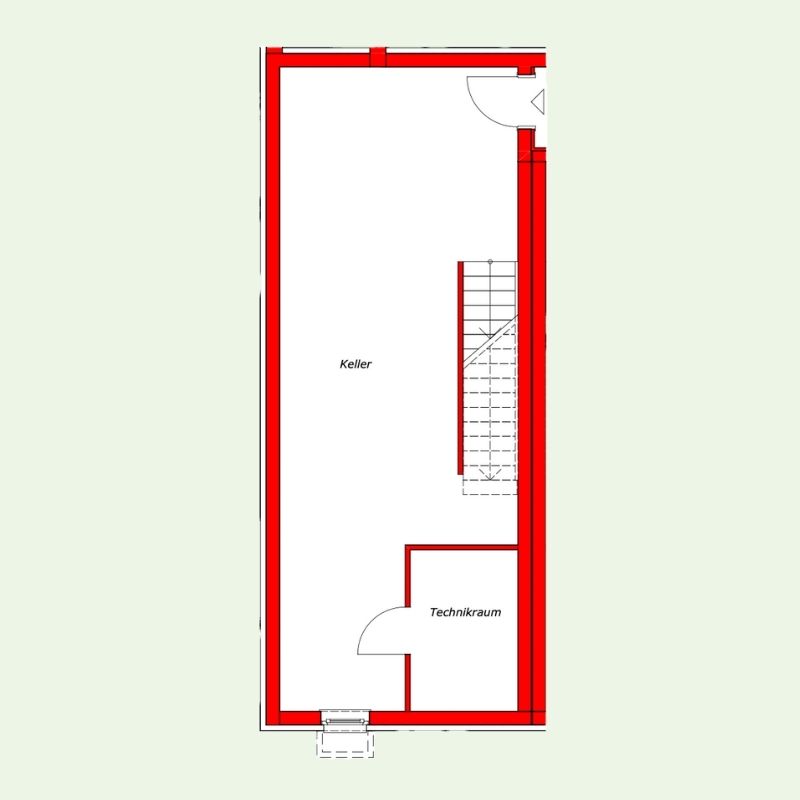
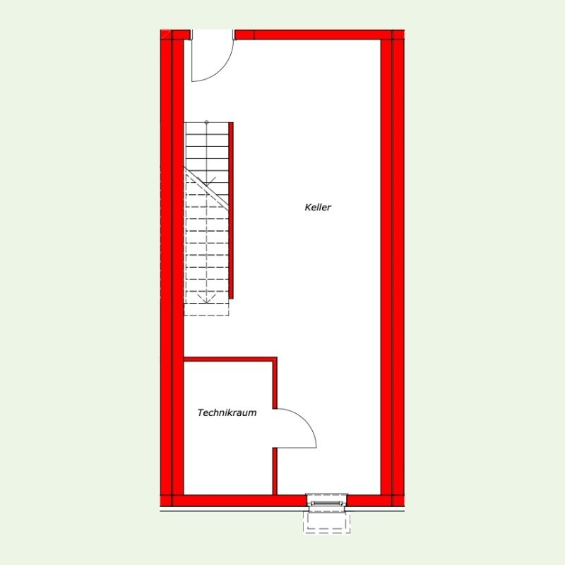
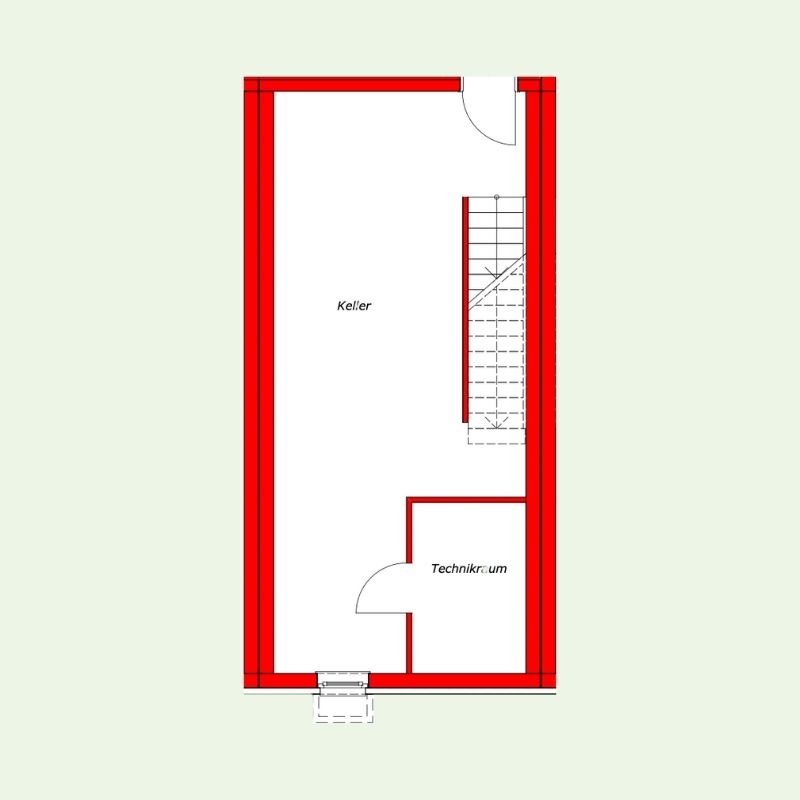
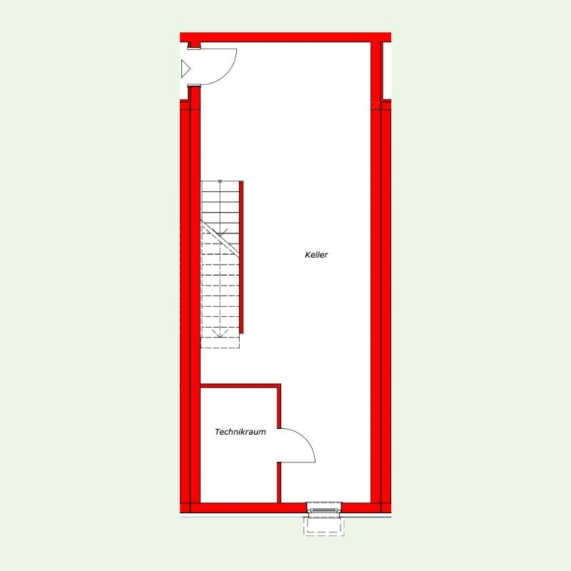
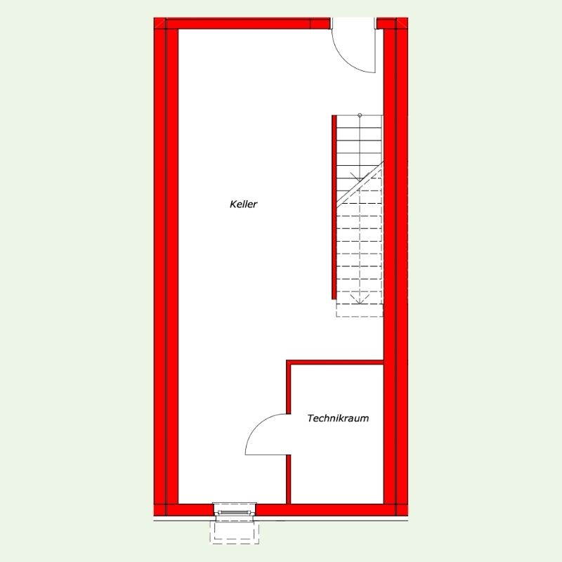
Dieses Haus bietet auf vier Ebenen vier Zimmer mit rund 185 m² Fläche inklusive Keller und direktem Garagenzugang.
Eine großzügige Wohnküche, ein sonniger Garten, Büro und zwei Schlafzimmer mit Schrankraum und Bad schaffen Raum für individuelles Wohnen.
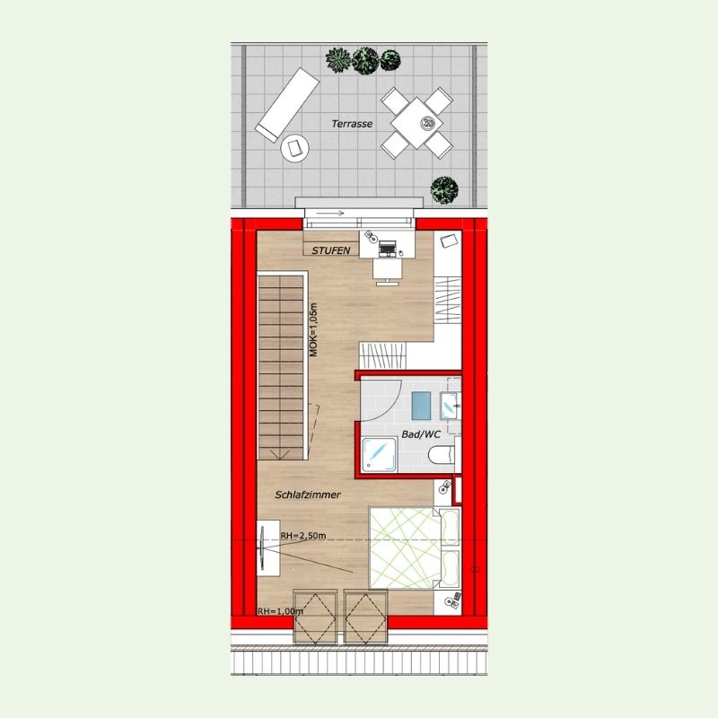
Das Dachgeschoß begeistert mit einem weiteren Schlafzimmer, Bad und privater Terrasse.
Moderne Technik mit Solar-Anlage, Luftwärmepumpe und Fußbodenheizung sorgt für Energieeffizienz und niedrige Betriebskosten.



































































